Custom Residential & Commercial Interior Design
in Northern Colorado & beyond
I believe design can bring physical, mental, and spiritual wellness to everyone.
Custom Residential & Commercial Interior Design
in Northern Colorado & beyond
I believe design can bring physical, mental, and spiritual wellness to everyone.
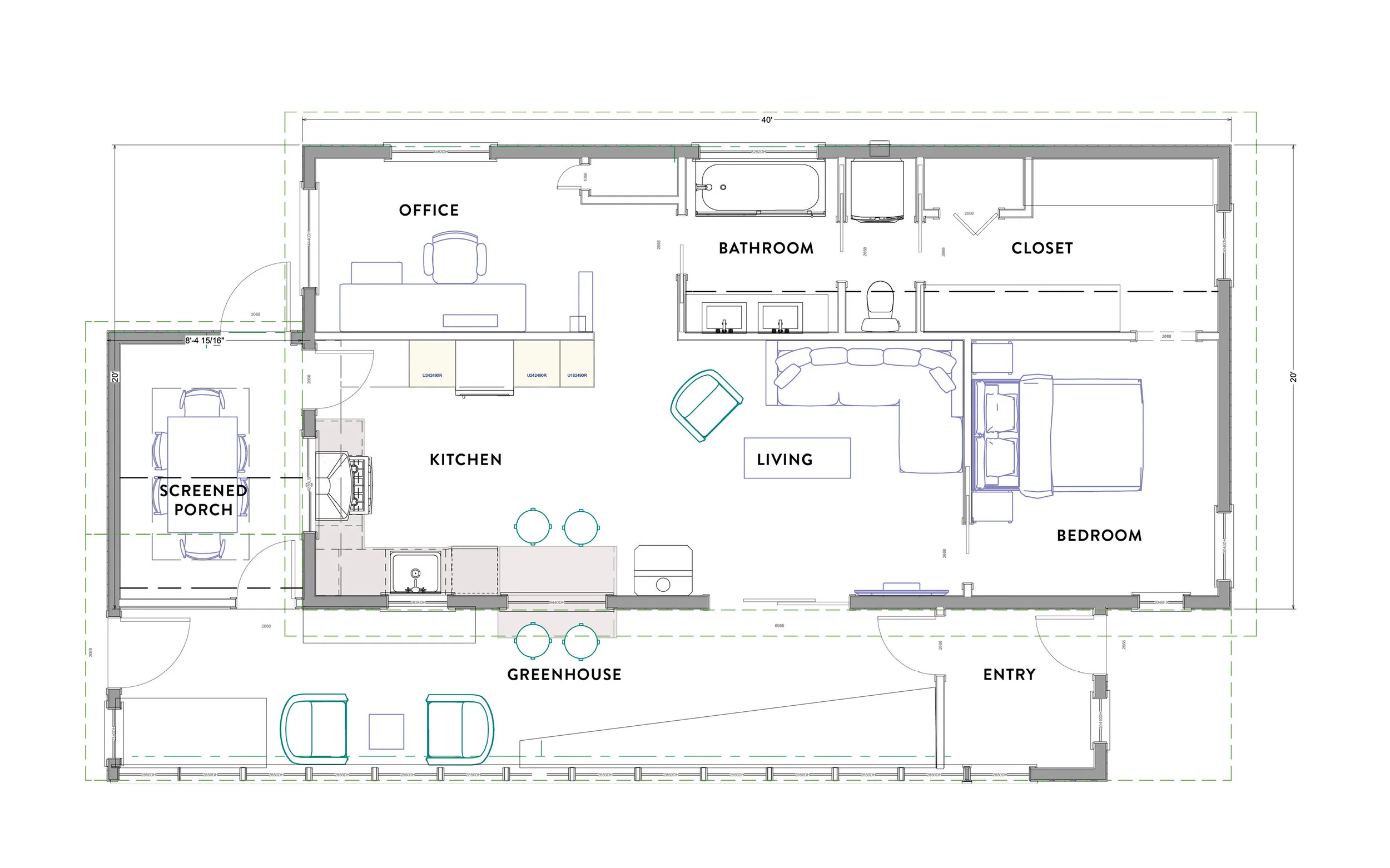
Looking for affordable, DIY options for different living spaces, this project explored designing a tiny house based on the Earthship design principles such as passive heating, incorporating greenhouse space and a linear layout. I also design a multi-use utility trailer for off the grid camping. When creating the interior design direction for each project, we looked at a clean modern approach using sustainable materials.
Utility Trailer Plan Layout
Utility Trailer Plan Layout