Custom Residential & Commercial Interior Design
in Northern Colorado & beyond
I believe design can bring physical, mental, and spiritual wellness to everyone.
Custom Residential & Commercial Interior Design
in Northern Colorado & beyond
I believe design can bring physical, mental, and spiritual wellness to everyone.
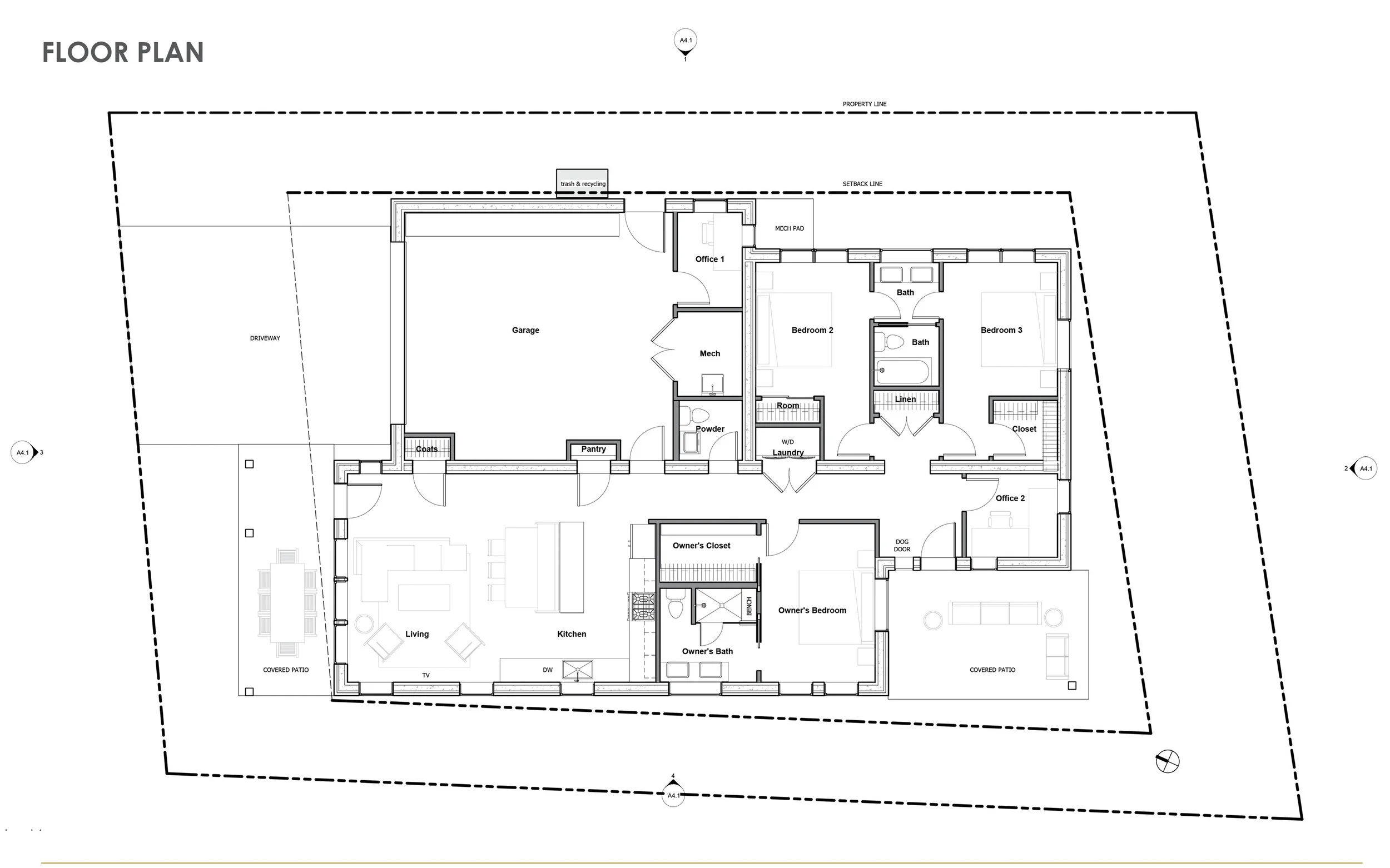
Working from a base floor plan of a similar home in the neighborhood, I collaborated closely with the clients to modify the plan for their lifestyle. The tight setbacks of the lot and the clients’ preference for using insulated concrete forms for the mains structure determined the constraints of the building footprint. Incorporating two home offices to work from home and focusing on low-maintenance design was key to making this a timeless place for years to come.