Custom Residential & Commercial Interior Design
in Northern Colorado & beyond
I believe design can bring physical, mental, and spiritual wellness to everyone.
Custom Residential & Commercial Interior Design
in Northern Colorado & beyond
I believe design can bring physical, mental, and spiritual wellness to everyone.
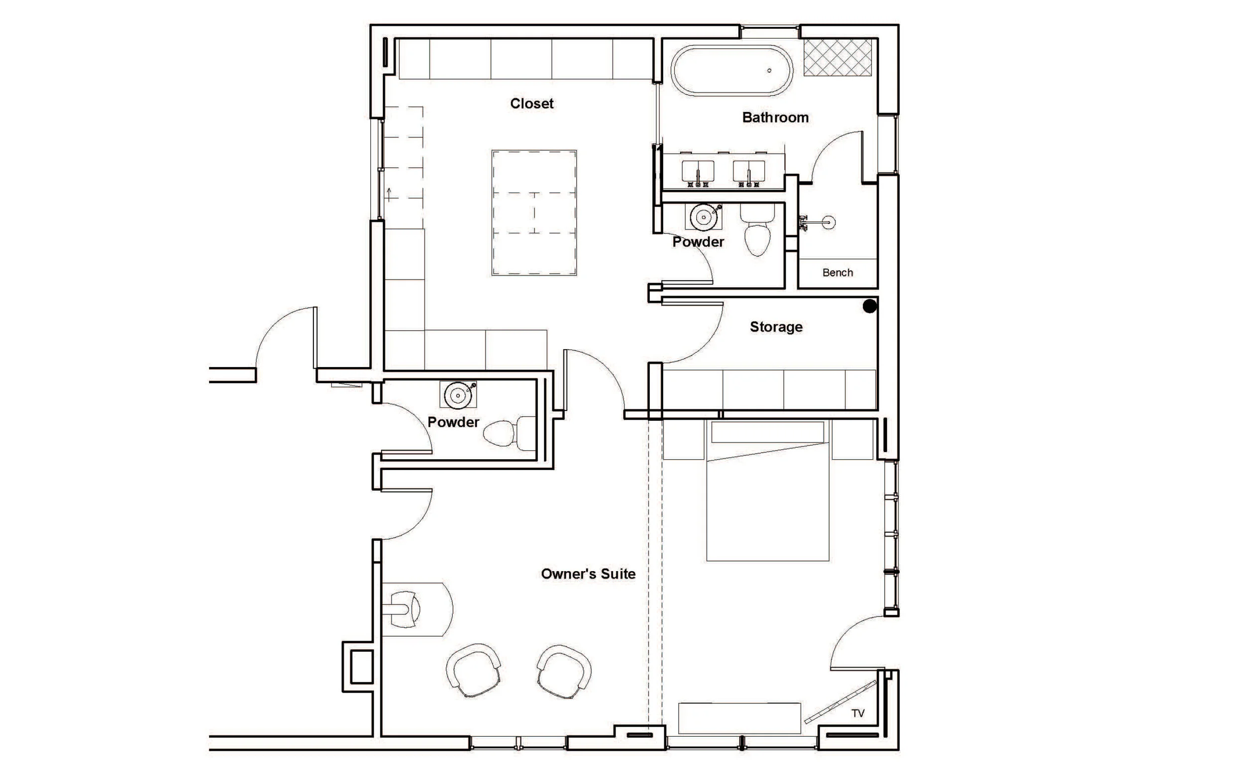
The renovation of this lower level living area and small bedroom into a large owner’s suite with walk-in closet creates a more efficient use of space and better flow for the couple. Using classic materials and neutral tones brought in much needed light into the lower level.